Апартаменты «Смольный проспект 2»

Год: 2020

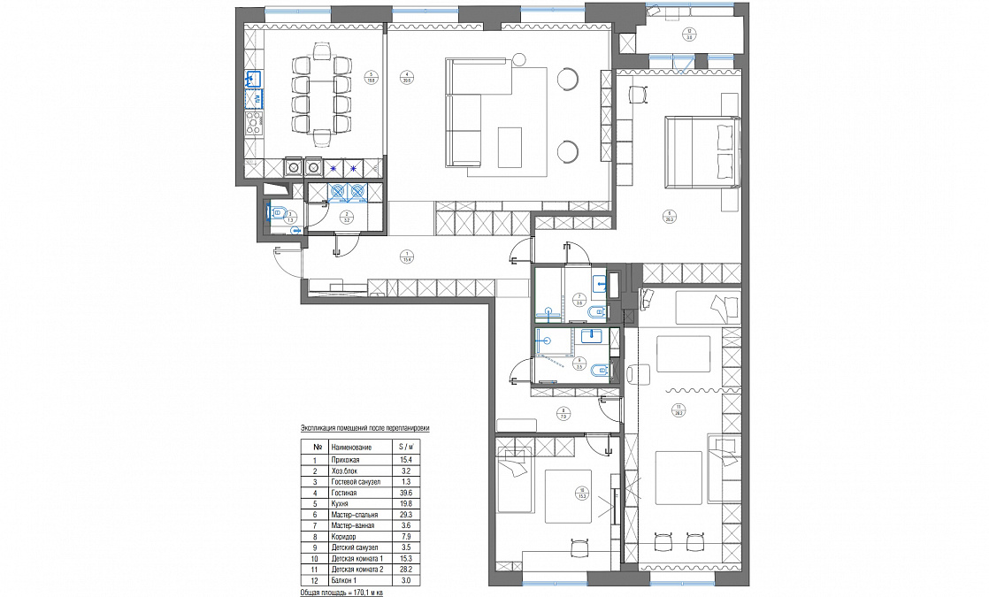
Площадь: 170 м2

Статус проекта: Завершено

Фотосессия просторной квартиры с видом на Смольный собор

Перед нами стояла задача грамотно зонировать пространство, чтобы у каждого члена семьи оставалось личное пространство. Мы разделили все пространство квартиры на 3 основных блока: общее пространство кухни-гостиной, мастер спальня с ванной и личным балконом, детские комнаты с отдельным санузлом

Фото от Никиты Коростелева

Смольный проспект 2

Интерьер кухонной зоны построен на сочетании натуральных текстур и лаконичных форм. Обеденная группа с белым столом и бархатными стульями глубокого синего цвета добавляет интерьеру камерности и колористической насыщенности. Сферический подвесной светильник над столом усиливает зонирование и создает мягкое освещение в вечернее время.

Смольный проспект 2
Смольный проспект 2
Смольный проспект 2

Модульный диван из синего бархата и кресло горчичного оттенка создают многоуровневую зону отдыха. Журнальный и приставной столики с мраморными столешницами и металлическими ножками добавляют интерьеру текстурного разнообразия.

Смольный проспект 2
Смольный проспект 2
Смольный проспект 2

Напольное покрытие комбинируется из крупноформатного мрамора и деревянного паркета, визуально разделяя зоны при сохранении единства стиля. Встроенные шкафы и открытые стеллажи из светлого дерева формируют систему хранения, где функциональность сочетается с декоративностью.

Смольный проспект 2
Смольный проспект 2
Смольный проспект 2

Пространство  спальни выполнили в сдержанной колористической гамме, где доминируют серо-голубые и белые тона, создающие ощущение воздушности и спокойствия. Акцентная стена у изголовья с декоративными молдингами и глубокие бордовые шторы формируют выразительные цветовые контрасты, добавляя интерьеру глубины.

Смольный проспект 2
Смольный проспект 2
Смольный проспект 2
Смольный проспект 2

Коридор между комнатами сделали ярким и функциональным. Для отделки стен выбрали покраску с геометрическим рисунком. Мы специально использовали насыщенные и немаркие цвета. В коридоре организовали небольшое место для чтения: необычный открытый стеллаж для книг, яркий пуф и настенные светильники. Цвета из коридора мы ввели в санузел, связав между собой эти помещения.

Смольный проспект 2

Смольный проспект 2
Смольный проспект 2

Детскую комнату для мальчика сделали более «брутальной» и ввели темные цвета. Мы использовали штукатурку под бетон и темно-серый цвет стен. Место для сна является частью композиции шкафа. Мы выделили кровать темно-зеленым цветом. Над изголовьем кровати сделали открытые полочки и небольшой светильник.

Смольный проспект 2
Смольный проспект 2

Под кроватью предусмотрели выдвижные ящики для хранения.
Рабочее место с большой столешницей позволит детям заниматься уроками вместе. Слева от рабочего места мы придумали настенную систему хранения, в которую будет встроен ТВ. Она выполнена в светло-сером и зеленом цветах. Справа от окна и рабочего места — неглубокий стеллаж для школьных принадлежностей.

Смольный проспект 2

Детскую для девочек выполнили в сочетаниях серо-бежевого с желтым и розовым. Большую систему хранения удалось визуально уменьшить за счет цвета и акцентных вставок. Рабочий стол сделали с выдвижными ящиками, где будет удобно хранить тетради и другие школьные принадлежности. По обеим сторонам от рабочего места есть открытые полки для книг и учебников. Мы сделали часть стены около ТВ со специальным покрытием для рисования.
Тумбу под ТВ мы сделали низкой в качестве дополнительного места для сидения. В ней располагаются выдвижные ящики для хранения. Около рабочего стола мы сделали открытый ящик для рюкзаков и игрушек.

Смольный проспект 2
Смольный проспект 2
Смольный проспект 2
Смольный проспект 2
Смольный проспект 2
Смольный проспект 2

Небольшую приватную зону для старшей дочки мы отделили плотной шторой, которую при необходимости можно закрыть. Мы поместили кровать так, чтобы изголовье кровати не просматривалось при входе. Мягкие панели вокруг кровати позволяют использовать ее как диванчик. Рядом с изголовьем мы сделали открытые полочки для хранения личных вещей. Напротив кровати поставили большое кресло и зеркало в пол.

Смольный проспект 2

Проект на карте

Услуги

  • Дизайн жилых интерьеров

  • Ремонт и отделочные работы

  • Строительство и реконструкция

  • Подбор мебели и отделочных материалов

  • Комплектация объекта

  • Авторский надзор

  • Технический надзор

  • Перепланировка