Ресторан «Grasseria»

Год: 2021

Площадь: 140 м2

Статус проекта: Визуализация

Проект семейного ресторана Grasseria.

Уютное, домашнее место в спальном районе Петербурга, в котором можно встретиться с друзьями, провести романтический вечер или собрать на ужин всю семью.

Акцент здесь сделан на здоровой еде, натуральных продуктах и безотходном производстве. А пышные зеленые растения и приглушенный свет создают ощущение связи с природой, которой нам всем так не хватает в большом городе!

Grasseria

Основой пространственного решения стал контраст: открытый, наполненный светом зал с высокими потолками сочетается с приглушённым освещением и обилием зелени.

Grasseria

За основу концепции взято противопоставление фактур: матовый микроцемент полов, шероховатая поверхность архитектурного бетона, имитирующая скальную породу, и глубокая матовая краска на стенах.

Grasseria

Центральные элементы пространства — монолитные напольные кашпо с интегрированными столами, собранный из терраццо.

Grasseria

Архитектурный акцент сделан на создании нескольких сценариев посадки гостей: от уединенных зон в нишах с кашпо до динамичного пространства.

Grasseria

Пространство организовано по принципу камерности. Зонирование достигнуто за счет расстановки живых растений, которые создают естественные границы между столиками, не нарушая цельности интерьера.

Grasseria

Доминантой интерьера стал комплекс подвесных полок для растений с интегрированной подсветкой, создающий ощущение зеленого оазиса в индустриальном ландшафте.

Grasseria

Каждая деталь, от текстуры обивки мебели до выбора настенных светильников, работает на создание целостного образа — уединённого оазиса, где городской шум остаётся за порогом.

Grasseria
Grasseria

Санузлы решены как минималистичные кабины с подвесными унитазами, накладными каменными раковинами и скрытой подсветкой зеркал.

Grasseria

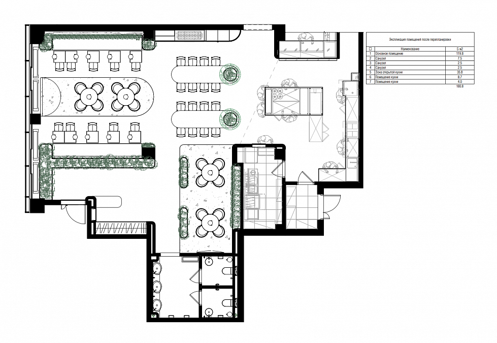
Работа над проектом включала в себя полное архитектурное перепланирование помещения. Были демонтированы существующие перегородки и радиаторы центрального отопления, что позволило сформировать единое гибкое пространство с открытой кухней и системой раздвижных реечных перегородок. Общая площадь после перепланировки составила 180.8 м², что позволило комфортно разместить основную зону, санузлы и технические помещения кухни.

Проект на карте